- Descrizione del prodotto
-
Descrizione del prodottoCassetta con telaio "cieca" per la realizzazione di un'apertura di ispezione a pavimento da installare su UZD350-3 in pavimenti trattati con qualsiasi tipo di lavaggio in ambienti interni. Adatto solo per pavimenti lisci.
-
- Dati tecnici
-
Misure
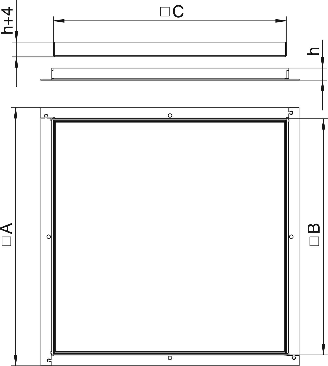
Dimensione A 424 mm Dimensione B 388 mm Dimensione C 382 mm Dimensione H 25 mm Dimensionee 383x383x25 Impronta CO2 (GWP) dalla culla al cancello 31,1781 kg CO2e / 1 Pezzo Materiale Acciaio INOX 1.4301 Porta apparecchi per l'installazione di scatola porta apparecchi no Spessore rivestimento pavimento 23 mm Trattamento del pavimento bagnato Versione uscita cavo Nessuna uscita cavo - Tutti i tipi
-
Tutti i tipi
- Download
-
Scheda tecnica RK V3 25 / 7406040 , 0.16MB , pdfScheda dati sicurezza RK V3 25 / 7406040 , 0.05MB , pdfREACH Dichiarazione di conformità RK V3 25 / 7406040 , 0.12MB , pdfRoHS Dichiarazione di conformità RK V3 25 / 7406040 , 0.13MB , pdf
Svizzera - Italiano
