Cassetta livellabile cieca, RKN, acciaio inox

N. art. 7408954 | EAN 4012197278120

4
Descrizione del prodotto
Descrizione del prodotto
Cassetta livellabile "cieca" quadrata di dimensione nominale 4, per creare un'apertura d'ispezione; da installare nel sistema di condotti in pavimenti sopraelevati e con intercapedini, in pavimenti trattati a secco o umido in ambienti interni. Adatto solo per pavimenti lisci. Livello di protezione: IP X5.
Per il montaggio di 2 supporti universali UT3 per 4 apparecchi di installazione singoli con anello/staffa di supporto o 6 apparecchi Modul 45®. È possibile installare 2 piastre di copertura APMT2.
  • Associazione di elettrotecnica, elettronica, tecnologia di informazioni e.V., Germania
  • Comunità europee, Dichiarazione di conformità CE secondo le linee guida CE
  • grado di protezione IP 55
  • Impronta di carbonio (PCF)
  • Confezione completamente in cartone riciclato
Dati tecnici

Dati tecnici

Adatto per incasso in intercapedini del pavimento
Adatto per incasso nel pavimento doppio
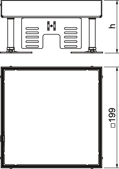
Altezza 110 mm
Altezza pavimento max 155 mm
Altezza pavimento min. 110 mm
Carico verticale, grande superficie fino a 5.000 N
Carico verticale, piccola superficie fino a 3.000 N
demesioni per l'installazione 201 mm
Dimensione H 110 mm
Dimensione nominale per torretta 4
Dimensionee 199x199x105
Disaccoppiabile no
Grado di protezione (IP) con coperchio aperto IP00
Grado di protezione (IP) con coperchio chiuso IP55
Grado di protezione IK-Code IK10
Impronta CO2 (GWP) dalla culla al cancello 14,423 kg CO2e / 1 Pezzo
Intervallo di livellamento max 155 mm
Intervallo di livellamento min. 110 mm
Larghezza 199 mm
Lughezza. 199 mm
Lunghezza di montaggio 201 mm
Materiale Acciaio, inox
Normaa EN 50085-2-2
Numero di supporti universali 2 x UT3
Omologazioni VDE
Porta apparecchi per l'installazione di scatola porta apparecchi no
Profondità di montaggio 110 mm
Spessore rivestimento pavimento 25 mm
Tipo di sistema di installazione UT3
Trattamento del pavimento bagnato
Versione quadrato
Versione per carichi pesanti no
Versione uscita cavo Nessuna uscita cavo
Tutti i tipi

Tutti i tipi

Tipo Altezza pavimento min. Altezza pavimento max Spessore rivestimento pavimento Dimensione H Dimensione nominale per torretta N. art. Quantità Conf. Prezzo di listino IVA escl.
RKN3 4 VS 20 105 mm 150 mm 20 mm 105 mm 4 7408950
1 pz 252,39 CHF Prezzo / 1 pz
RKN3 4 VS 25 110 mm 155 mm 25 mm 110 mm 4 7408954
1 pz 257,59 CHF Prezzo / 1 pz
Accessorio

Accessori del sistema

Prodotti Tipo N. art. Quantità Conf. Prezzo di listino IVA escl.
Unità di livellamento RKNEV2 Unità di livellamento RKNEV2 RK NEV2 110 7405815
1 VPE 23,03 CHF Prezzo / 1 VPE
Guscio Terrazzo per cassette livellabili dimensione nominale 4 Guscio Terrazzo per cassette livellabili dimensione nominale 4 SK RK4 7404380
1 pz 197,76 CHF Prezzo / 1 pz
Coperchio di montaggio 350 dimensione nominale 4 Coperchio di montaggio 350 dimensione nominale 4 DUG 350-3 4 7400505
1 pz 50,87 CHF Prezzo / 1 pz
Download

Download

Dichiarazione di conformità UE RKN3 4 VS 25 / 7408954 , 0.13MB , pdf
Download
REACH Dichiarazione di conformità RKN3 4 VS 25 / 7408954 , 0.13MB , pdf
RoHS Dichiarazione di conformità RKN3 4 VS 25 / 7408954 , 0.13MB , pdf

RKN3 4 VS 25 / 7408954
Download