Remarque: Cet article est un article de fin de série.

Cassette à cadre pour trappe d'inspection, RK, taille nominale 350-3, laiton

Réf. 7405876 | EAN 4012195105763

Description du produit
Description du produit
Cassette à cadre pleine pour la réalisation d'une trappe d'inspection dans les boîtes UZD350-3 dans des planchers nettoyés à l'eau ou à sec en intérieur. Convient uniquement aux revêtements de sol lisses.
  • Fédération allemande des industries de l'éléctronique et de l'ingénierie de l'information
  • Communautés Européennes, CE Déclaration de conformité selon directives CE
Caractéristiques techniques

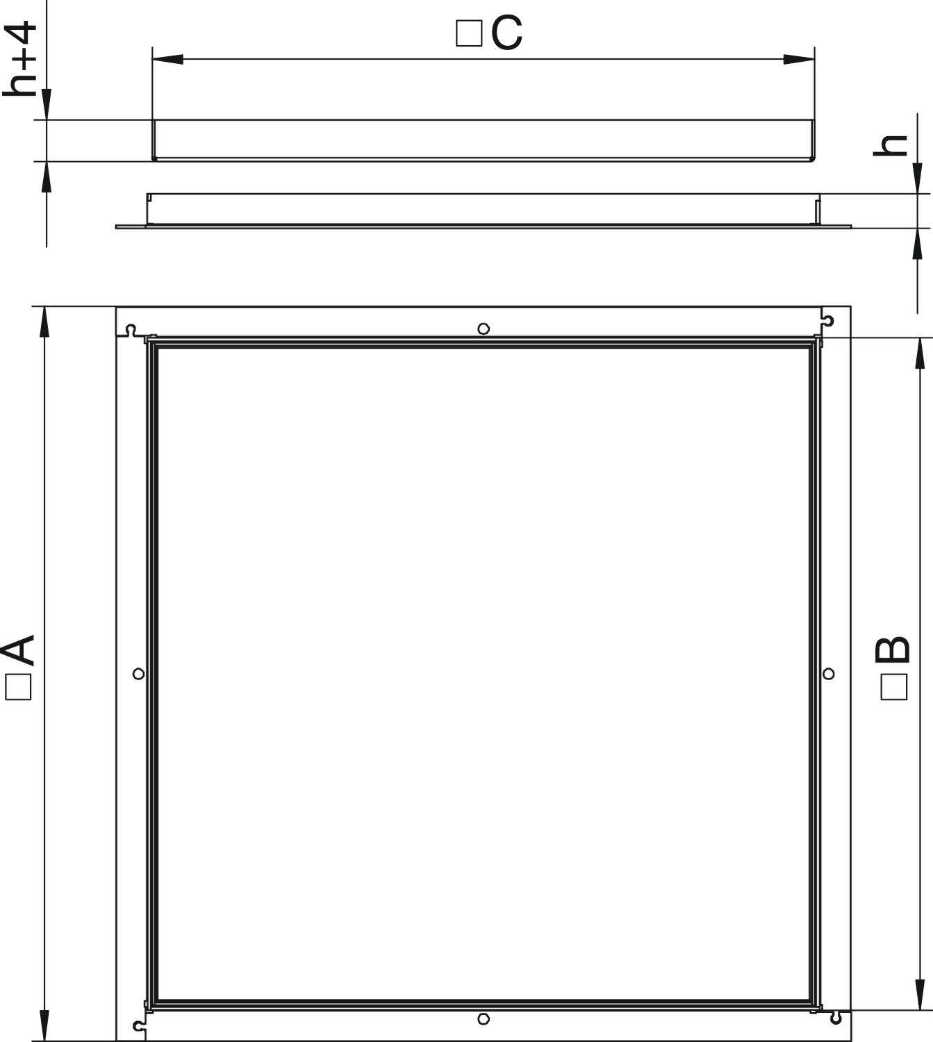
Dimensions

Cote A 424 mm
Cote B 388 mm
Cote c 382 mm
Dimension h 20 mm
Dimension 383x383x20
Entretien du sol humide
Épaisseur du revêtement de sol 18 mm
Matériau laiton
Modèle Sortie de câble Pas de sortie de câble
Support d'appareillage pour le logement de paniers appareillage non
Tous les types

Tous les types

Type Dimension h Épaisseur du revêtement de sol Réf. Quantité Plus petite unité de vente Prix de tarif TVA excl.
RK M3 15 15 mm 13 mm 7405872
1 Pièce 385,13 CHF Prix / 1 Pièce
RK M3 20 20 mm 18 mm 7405876
1 Pièce 402,45 CHF Prix / 1 Pièce
Téléchargements

Télécharger

RK M3 20 / 7405876
Télécharger